Krebs Immobilien

Kloster Lehnin OT Göhlsdorf

Ein tolles Heim für Ihre Familie

Das Objekt

Freistehendes und sehr gepflegtes Haacke-Wohnhaus (Baujahr 1993) mit Klinkerfassade, Carport, Gartenhaus mit Unterstand und großer Poolanlage. Das Haus ist nicht unterkellert.

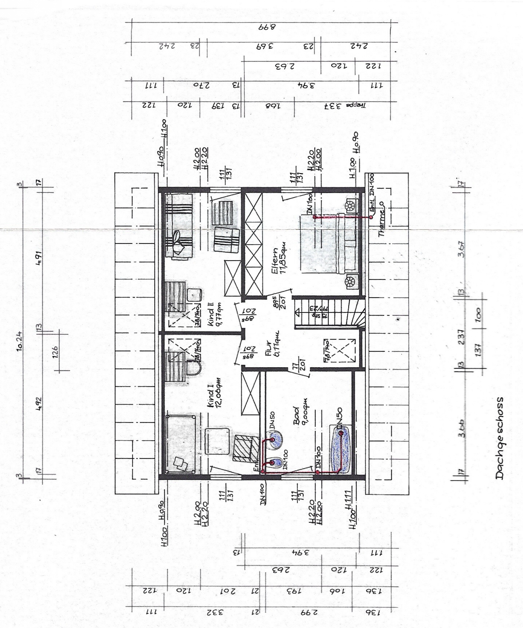
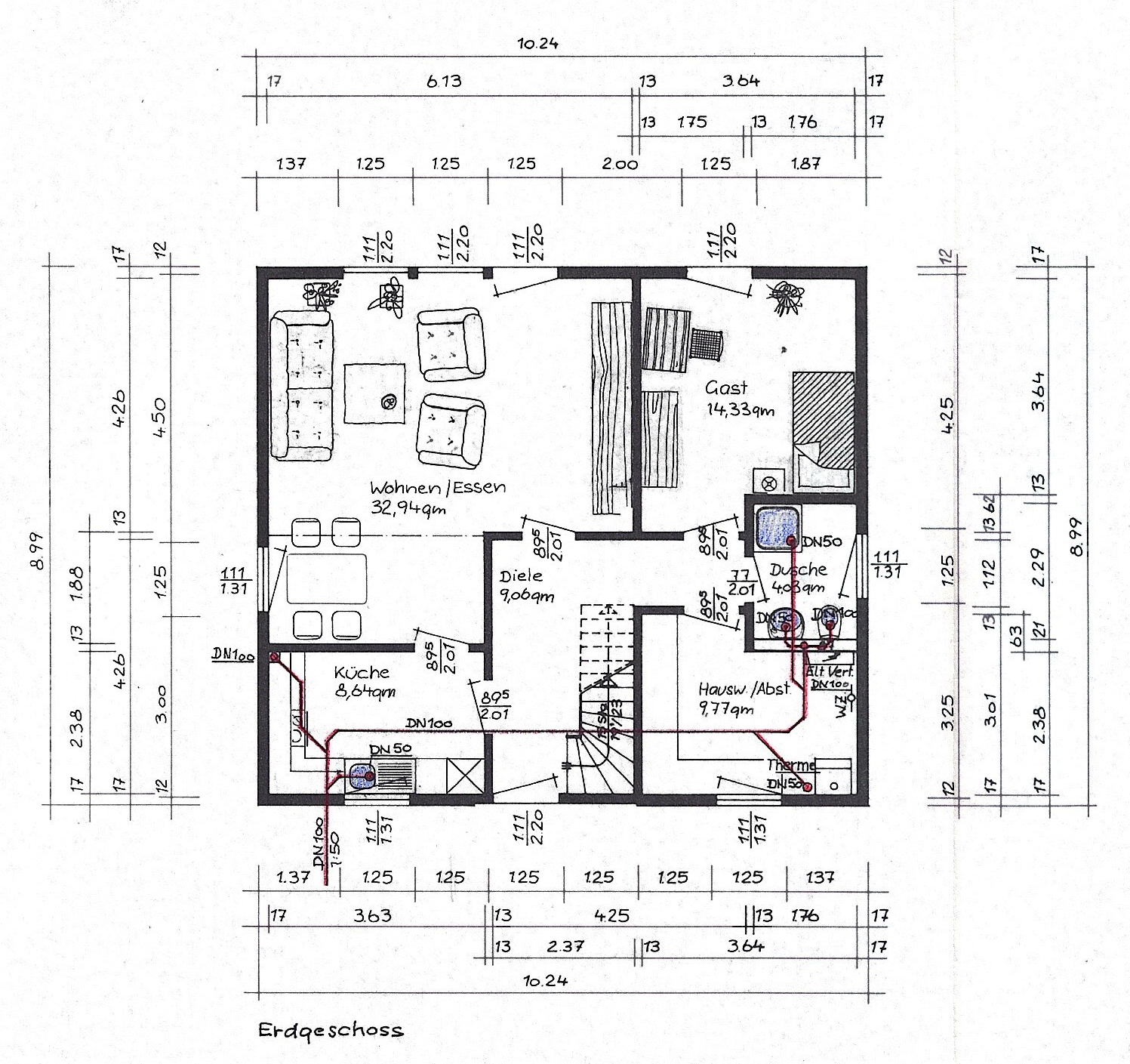
Die Wohnfläche beträgt ca. 124 , mit 5 Zimmern plus HWR und Kammer, einem raumhoch gefliestem Duschbad im EG (behindertengerecht) und einem Wannenbad im DG. Die Küche ist voll möbliert.

Das Grundstück hat eine Größe von 904 m².

Lage und Umgebung

Der Ort PHÖBEN liegt unmittelbar an der Havel, unweit der Stadt Werder (Havel).
Über die Autobahn A10 (Ab-/Zufahrt Phöben) erreicht man in ca. 25 Min. die Landeshauptstadt Potsdam.

Kaufpreis: € 459.000,00 VB

Status: verfügbar

Interessieren Sie sich für das Objekt?

Schreiben Sie uns gern und wir setzen uns mit Ihnen für Ihre Fragen und weitere Informationen in Verbindung

Nicht genau dass, was Sie suchen?

Unsere weiteren Objekte

Sollte nicht das für Sie passende dabei sein, nehmen Sie einfach Kontakt mit uns auf – Wir helfen Ihnen gerne weiter.